Foto Clujul Verde se extinde! Cum va arăta Parcul de Est, cu zeci de hectare cu grădini urbane, zone de sport, trasee pietonale și cicliste
- Scris de Ziua de Cluj
- 01 Noi 2025, 13:19
- Administraţie
- Ascultă știrea
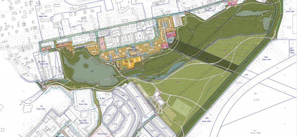
Consilierii locali au aprobat PUZ-ul pentru aproape 38 de hectare din Parcul de Est, care urmează să fie amenajat în partea estică a orașului, între zona Între Lacuri și pârâul Becaș.
Parcul de Est, un proiect în valoare de 18,5 milioane de euro, va fi amenajat în mai multe etape. Se începe cu prima parte, care cuprinde o suprafață de 10 hectare, cu amenajarea văii Becaș, între strada Sopor și Văii Someșeni. PUZ-ul a fost aprobat miercuri, 29 octombrie 2025, de consilierii locali ai municipiului Cluj-Napoca, în sedință extraordinară, iar potrivit primarului Emil Boc, această porțiune ”intră imediat la autorizare și licitație”.
Lucrările la Parcul de Est, care va fi cel mai mare din Cluj, se va face etapizat:
Faza 1: 37,9 ha – amenajarea biotopului umed, a văii Becaș, a Lacului 3 și a zonelor de grădină urbană
Faza 2: 16 ha – extinderea acestor intervenții în restul zonei de studiu
Printre principalele intervenții prevăzute se numără:
- Amenajarea de alei și pasarele pietonale, piste pentru biciclete, locuri de odihnă și terenuri pentru activități recreative
- Reabilitarea sistemului hidrotehnic și conservarea vegetației naturale
- Construirea unei clădiri-pavilion (S+P+1) cu funcțiuni educaționale, sportive și de alimentație publică
- Amenajarea de pavilioane ușoare, parcări pentru biciclete și parcări auto în zonele de acces
- Restricționarea traficului auto și promovarea accesului pietonal și velo din cartierele adiacente
- Reconfigurări stradale în zonele Între Lacuri, Gheorgheni și Calea Someșeni pentru a îmbunătăți conectivitatea cu parcul
Pe partea de amenajare de facilități sportive, proiectul prevede construirea unei săli de sport, a unei săli de evenimente, dar și a unui teren de fotbal cu gazon hibrid, a 6 terenuri de tenis de câmp pe zgură, a 3 terenuri de baschet și a unor piste de alergare.
Câștigătoarea concursului de soluții pentru viitorul parc a fost echipa formată din Metapolis Architects, Studio de Peisaj și Atelier MASS, cu proiectul intitulat „Shifting Natures”.
Zona care poarta deja denumirea de „Parcul Est” are o suprafață totală de peste 50 de hectare și cuprinde luciul de apă și malurile Lacului 3, zona fostei pepiniere a RADP și o porțiune umedă care, alături de o salbă de lacuri, constituie un biotop unic în mediul urban.
Valoarea totală a investiției pentru realizarea Parcului Est este de 743.437.082,11 lei, inclusiv TVA (149 mil. euro). Durata estimată de execuție a lucrărilor este de 24 de luni pentru fiecare etapă (48 luni). În vara anului 2022, Primăria a obținut o finanțare europeană de 10 milioane de euro pentru acest parc. Conform noilor modificări, suma totală este de 673.763.020 lei, din care 163.440.004 lei bani din creditul bancar.





















